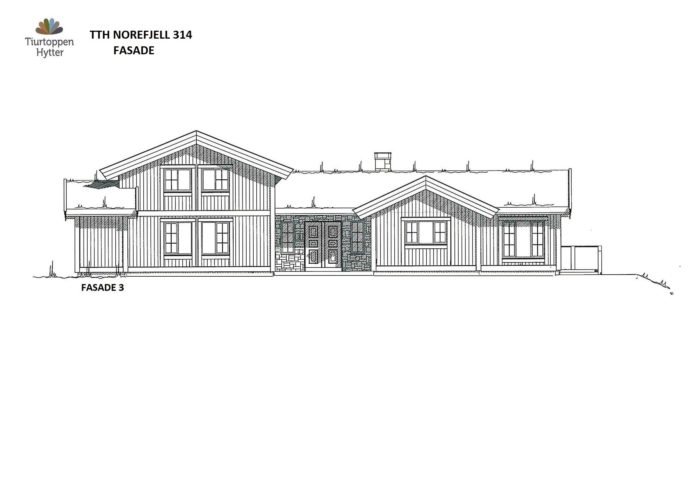
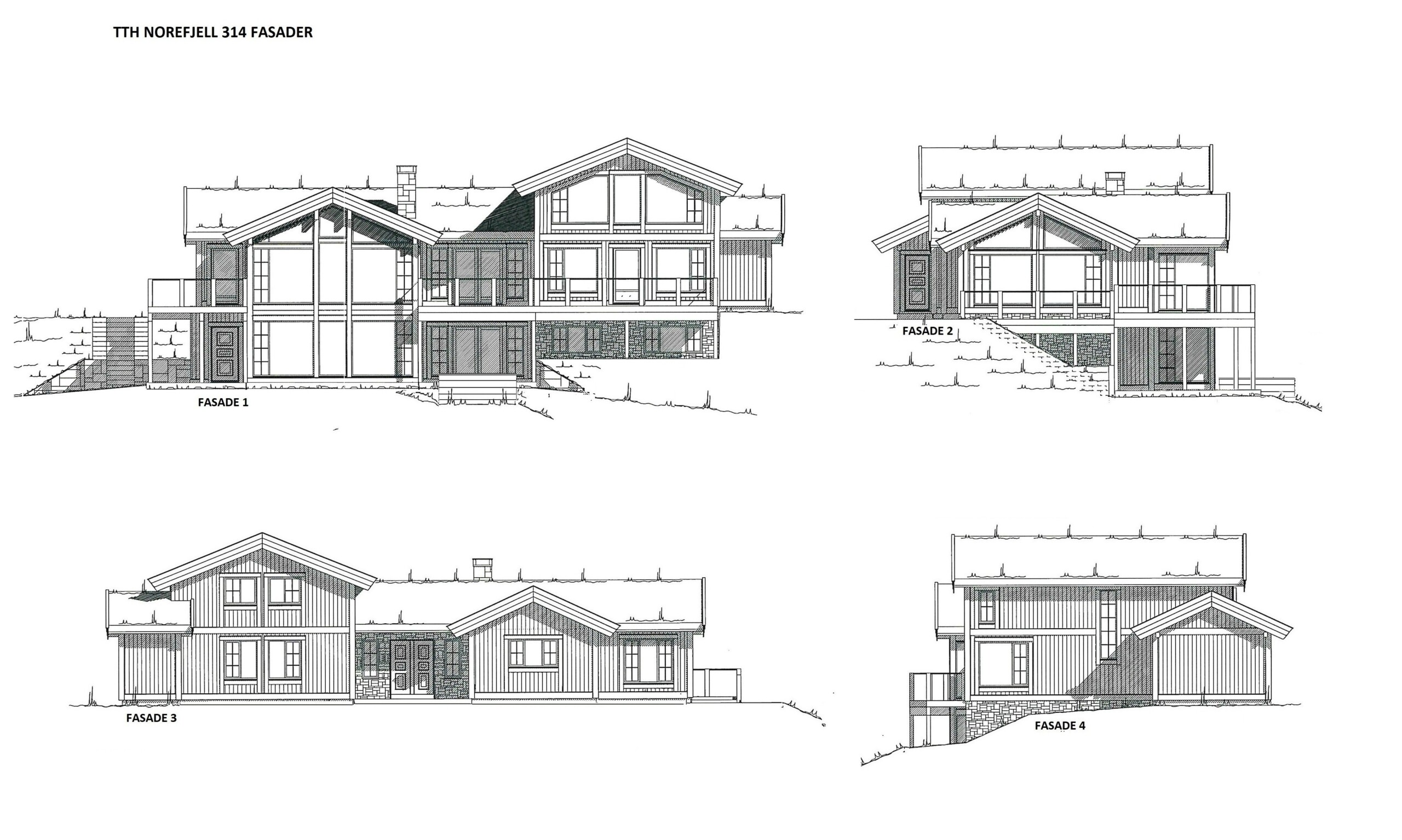
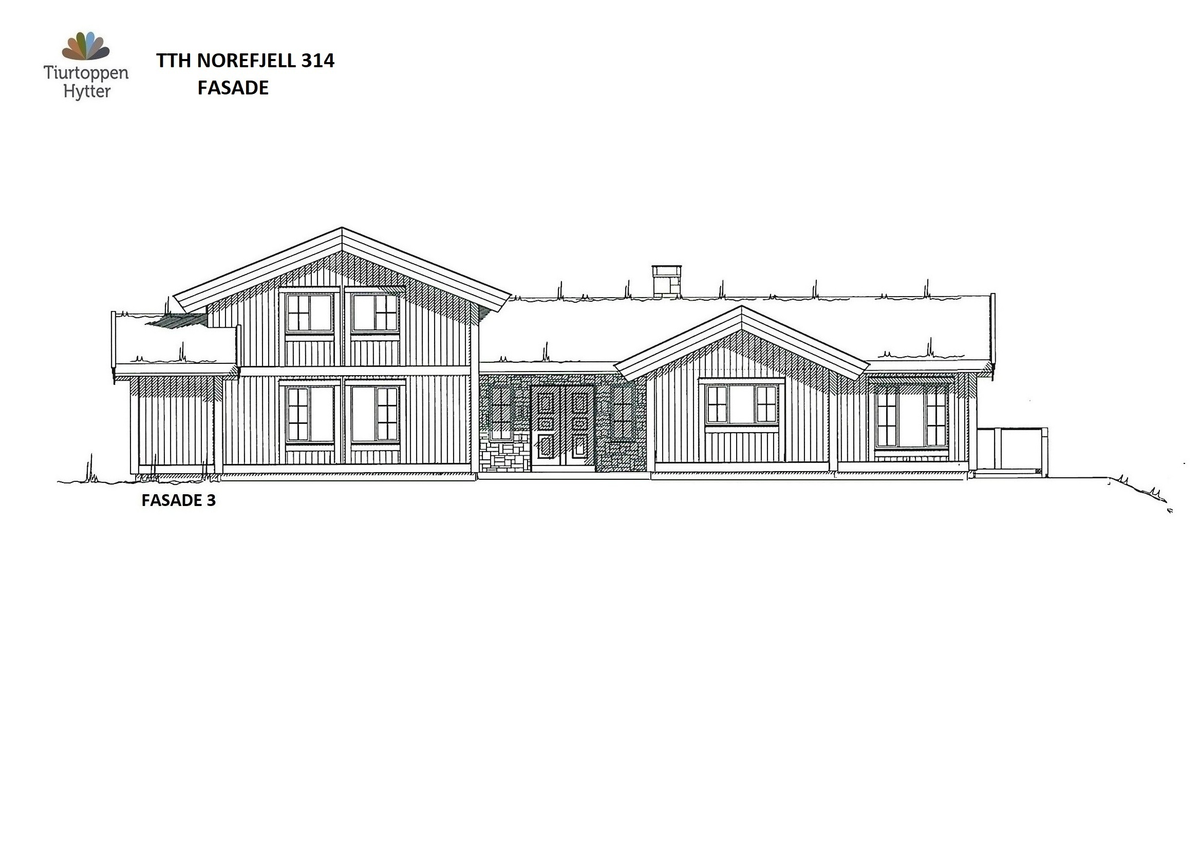
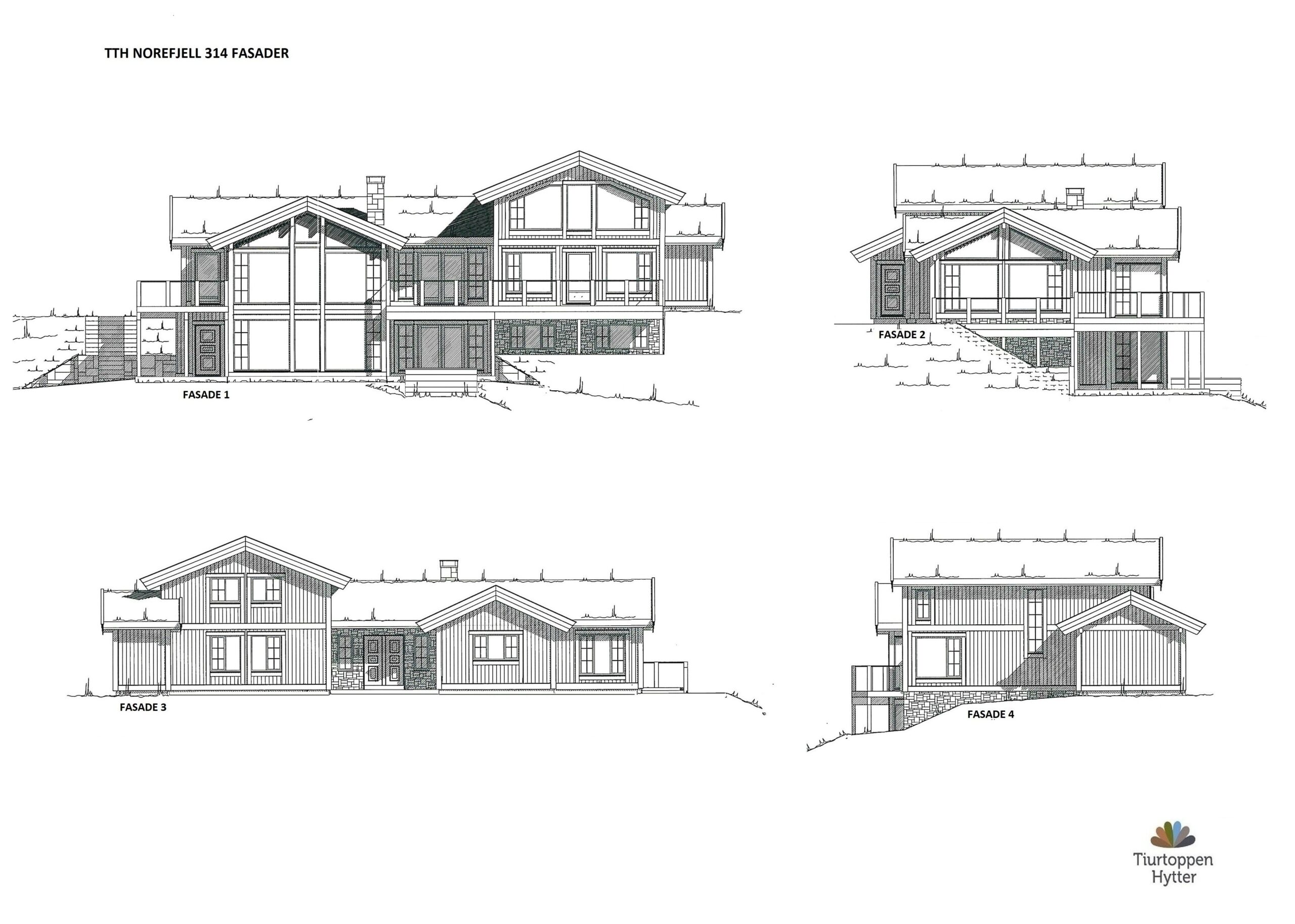
TTH Norefjell 314 – eksklusiv, innholdsrik og arealeffektiv hytte/fritidsbolig tilpasset skrå tomt med golvareal 314 m2, Bya 207 m2.
3 stuer, 7 soverom, 16 sengeplasser og 6 bad-/Wc rom – fordelt over 3 etasjer. Hytte tilpasset for generasjoners langsiktige livsløp med endringer av interesser, behov og familiesituasjon.
Innvendig og utvendig med eksklusive detaljer, materialer, innredninger, møbler og utstyr – dels spesialprodusert og plassbygd med håndverk i høyeste kvalitet, dels fra våre faste leverandørers utvalg av kvalitetsmøbler og utstyr. Flere vær beskyttede terrasser/balkonger tilpasset forskjellige funksjoner.
Hovedplan med:
Stor stue, spisestue og kjøkken med åpne skrå himlinger i 2 møneretninger og store glassflater til fjellnatur og himmel. Sosial planløsning med utsiktsvinduer og ildsted i synsranden i både stue, kjøkken og spiseplass. Eksklusivt stort kjøkken med praktisk planløsning. Adkomst til balkong med spisebord og grill fra spisestua.
Entré med Wc-rom og adkomst til stor balkong (dels overbygd) hvor man kan nyte utsikten i avslappende stoler med flammene fra peisbordet. Utvendig bod ved inngangssiden for redskaper.
Soveromsgang med mastersoverom og bad med store glassflater til utsiktsiden og dør til balkong. 2 soverom mot inngangssiden, fellesbad og bod.
Loftsplan med:
Stor stue med panoramavinduer mot utsiktsiden. 2 soverom og Wc/bad.
Underetasje med:
Ski-/smøre bod og redskaper avskjermet bak skyvedører, omkledningsrom, treningsrom, vin rom og stue for TV, spill og avslapning etter en dag i friluft.
Badstue med bad og adkomst til stor overdekket terrasse med sofagruppe og Jackuzzi.
Gang med 2 soverom, stort bad og vaskerom, innredet med mye skap-og benkeplass, kjøleskap og vaskekar. VVS teknisk rom ved vaskerommet.
Se rom, uteplasser og detaljer innvendig og utvendig etter de første illustrasjoner under.




